| BILL MAY A R C H I T E C T |
|||||||||
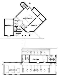
| City of Houston, Central Pump Station Designed by Bill May as employee of BJI. |
|||||||||
| Home |
|||||||||
| Back to Projects |
![]() |
||||||||
| Next |
|||||||||
![]() |
|||||||||
| I designed this project years ago while employed by a large engineering firm. The site for this project, near downtown Houston, was blessed with a stand of mature live oak trees. The program included both a new central pump station and a central control center for water department. A preliminary engineering report had called for a single building. Bill May saw conceptual opportunities to separate the functions using a bridge between buildings with a bridge between them as a metaphor for the electronic link. Visitors observe the operations of the control center from a second floor overlook and can then cross a bridge to observe the pump station operation from another second floor observation deck. Separating the buildings also enabled the design of the buildings to save the oaks. This design has stood the test of time and still looks good. |
|||||||||
![]() |
|||||||||
| Next |
|||||||||
| Bill May Architect 5925 Kirby, suite 220, Houston, TX 77005 713-665-5656 bmay8@sbcglobal.net |
|||||||||