| BILL MAY A R C H I T E C T |
||||||||||||||
| DuPont Residence The Warwick Towers |
||||||||||||||
| Home |
||||||||||||||
| Back to Projects |
||||||||||||||
![]() |
||||||||||||||
| Next |
||||||||||||||
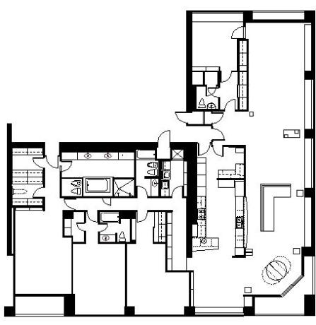
| This home is a great example of my feeling that people are in some way unique, and that can and should lead to the creation of a place that reflects the owner. This project combined two units and is a cheerful, open home which reflects the personalities of the owners and provides ample opportunity to display the art and objects they have collected including the medical school beer can and childhood baseball card collections. A large space opens to both the north and south as well as to the East. Storage between columns along the east wall creates space for several collections of small objects as well as a media center visible from both the seating area and the kitchen. |
||||||||||||||
![]() |
||||||||||||||
![]() |
||||||||||||||
| A direct path to the new master bedroom was made impossible by a concrete shear wall, but in this circuitous path we found an opportunity to create galleries leading past a full height wall of colorful beer cans, a more intimate wall of vintage baseball cards and finally an entire wall of family photos and portraits. The architect framed baseball cards so that could be removed to see the player's “stats” on the back. |
||||||||||||||
![]() |
||||||||||||||
![]() |
||||||||||||||
| Next |
||||||||||||||
| Bill May Architect 5925 Kirby, suite 220, Houston, TX 77005 713-665-5656 bmay8@sbcglobal.net |
||||||||||||||