BILL MAY
A R C H I T E C T
Drake Printing
Pasadena
Home
Back to Projects
Next
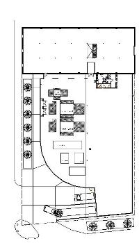
This facility for Drake Printing, adjacent to their existing
building in the old business district, presented the
owner and architect with unique problems with respect
to zoning, landscaping and traffic circulation.

The design is a result of thoughtful programming and
conceptual planning with emphasis on traffic and
production flow patterns to insure an efficient operation.

The new  plant created considerable interest within the
city that this older part of town could again be a viable
area and  rundown buildings could be transformed into
an attractive part of the urban fabric.

With  support from the city of Pasadena,  Drake
Printings original building will initiate a façade
renovation program.
Next
Bill May Architect     3701 Rice Blvd, Houston, TX 77005    713-666-5669     bill@billmayarchitect.com