BILL MAY
A R C H I T E C T
Reiter Residence
The Warwick Towers
Home
Back to Projects
Next
Dining Room
This traditional high-rise residence was designed
around the fine 18th century antiques and
reproductions collected by the owners.  The owner, an
accomplished woodworker, built most of the
reproductions.

The design was intended, not to mimic 18th century
details, but to serve the programmatic needs of the
owners while providing an appropriate background for
the furniture, rugs and quilts.   
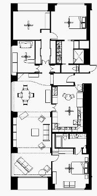
Plan 11A
Living Room
Building columns were used effectively along with
drywall "beams" to create a sense of separation of
spaces within the open living area.   A beam at the end
of the dining room takes the form of a piano curve to
nest atop the entry to the residence.

Fine custom cherry millwork in the living room and
kitchen in  extends the theme of 18th century
craftsmanship.
Kitchen
Next
Bill May Architect     3701 Rice Blvd, Houston, TX 77005    713-666-5669     bill@billmayarchitect.com