![]() |
![]() |
![]() |
![]() |
![]() |
![]() |
![]() |
![]() |
![]() |
![]() |
![]() |
BILL MAY A R C H I T E C T |
||||||||||
Drake Printing Pasadena |
||||||||||
Home |
||||||||||
Back to Projects |
![]() |
|||||||||
Next |
||||||||||
![]() |
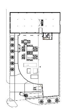
This facility for Drake Printing, adjacent to their existing building in the old business district, presented the owner and architect with unique problems with respect to zoning, landscaping and traffic circulation. The design is a result of thoughtful programming and conceptual planning with emphasis on traffic and production flow patterns to insure an efficient operation. The new plant created considerable interest within the city that this older part of town could again be a viable area and rundown buildings could be transformed into an attractive part of the urban fabric. With support from the city of Pasadena, Drake Printings original building will initiate a façade renovation program. |
|||||||||
![]() |
![]() |
|||||||||
Next |
||||||||||
Bill May Architect 5925 Kirby, suite 220, Houston, TX 77005 713-665-5656 bmay8@sbcglobal.net |